Acquaroli-Archi

Résidence Belfort

  • Réhabilitation :
  • VILLAS :
  • Etude :
  • Realisation_cat :
  • Immeubles :
  • Projets en cours : Projets en cours

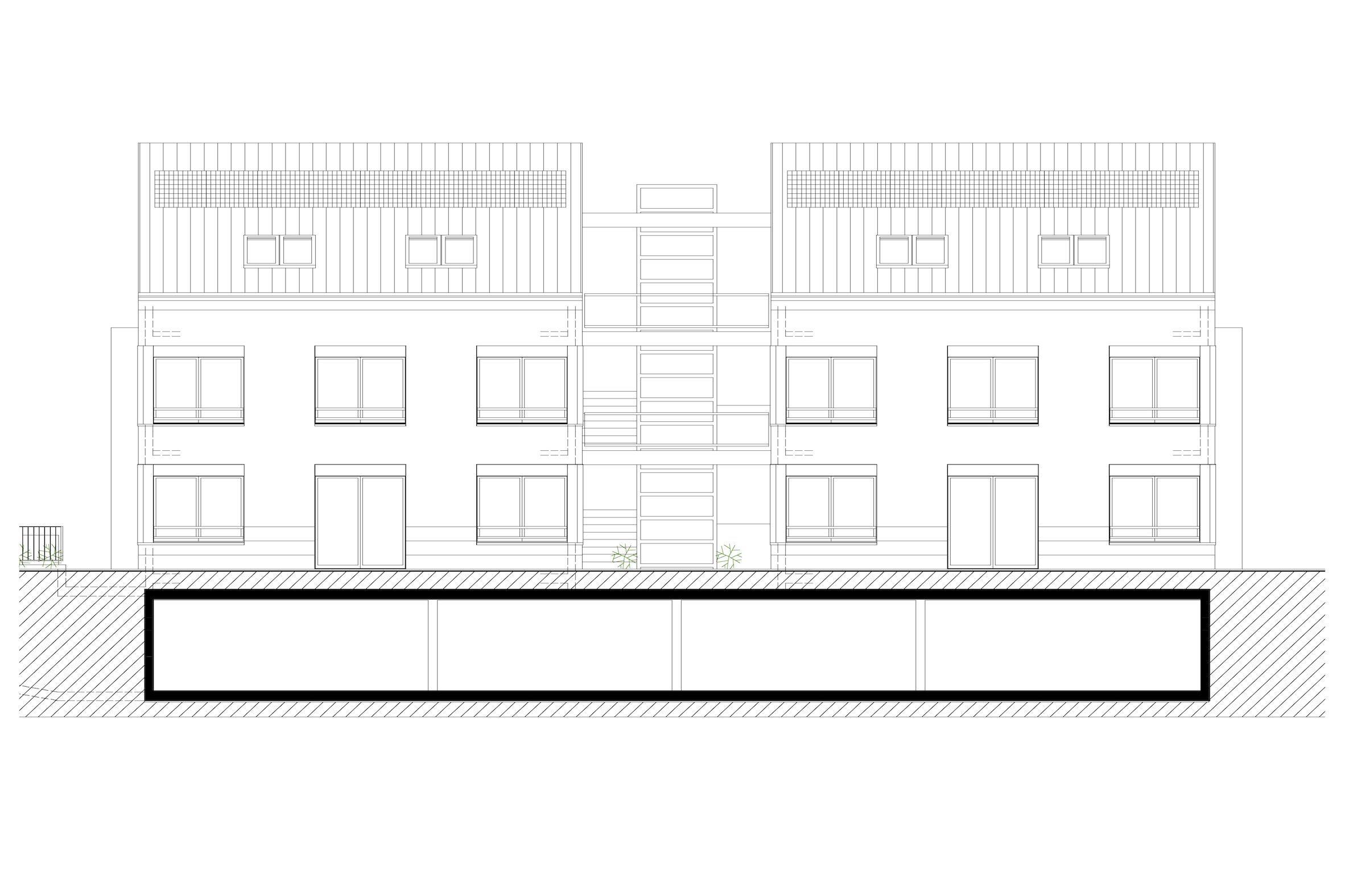
« Résidence Belfort » – Route de Belfort – Porrentruy – JU (en cours)

C’est sur une parcelle de 1000 m2 située au bord de l’Allaine – rivière qui traverse le district de Porrentruy – que 2 petits immeubles de logements ont été projetés.

Utilisant la déclivité naturelle du terrain, ils s’intègrent merveilleusement bien dans le paysage existant.

Le programme de 6 appartements et un parking souterrain utilise l’entier des droits à bâtir de la parcelle.

Une façade très ouverte côté rivière au sud-est, contraste avec la façade plutôt fermée côté rue, au nord-ouest.

Un soin particulier sera donné aux aménagements extérieurs qui seront le prolongement du bord de l’Allaine.